Bilocale in vendita

Rimini, Via carmagnola - San Giuliano A Mare
€ 285.000
2 locali 2 locali
70 Mq 70 Mq
1 bagno 1 bagno

Bilocale in vendita

Rimini, Via carmagnola - San Giuliano A Mare

Descrizione annuncio

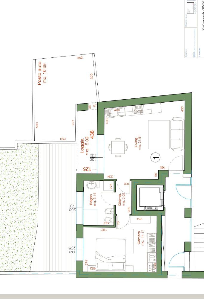
Ci troviamo a Rimini, nella splendida cornice di San Giuliano Mare, a pochi passi dal Parco Briolini e a 500 metri dal mare. All’interno di un nuovissimo complesso residenziale di sole 8 unità abitative, Tecnocasa Marina Centro propone in vendita in esclusiva:

Bilocale di nuova costruzione in classe energetica A4 di 70 mq commerciali situato al piano terra con giardino. L’accesso è diretto sulla zona living open space, composta da zona dining e zona soggiorno. Da qui si accede da una parte al giardino tramite una comoda porta finestra, dall’altra al meraviglioso patio, perfetto per momenti di convivialità e relax.

La zona notte si compone di un’ampia camera matrimoniale e un bagno finestrato con doccia.

Il fiore all’occhiello di questa proprietà è sicuramente il giardino di 73 mq, inserito in un contesto residenziale tranquillo e in continuo rinnovamento.

È possibile di acquistare un posto auto/garage al piano terra, quotazione disponibile in agenzia.

Capitolato di pregio consultabile in agenzia (piastrelle, rivestimenti, infissi, tapparelle, serramenti, portone blindato).

Mostra tutto

Nelle vicinanze

Trasporto pubblico Trasporto pubblico
Rimini
Rimini
920 m
Coletti-Sforza
Coletti-Sforza
230 m
P. Resistenza
P. Resistenza
310 m
Trasporto pubblico
590 m
Ricariche auto elettriche Ricariche auto elettriche
Hotel Crosal
520 m
Eneldrive Parco Federico Fellini
770 m
Rimini Ponte di Tiberio | EnelX
840 m
Eneldrive Stazione FS
910 m
Hotel Ambasciatori
1,0 Km
Scuole Scuole
Scuole
70 m
Scuola Secondaria di Primo Grado Statale "Dante Alighieri"
340 m
Università di Bologna - Complesso Navigare Necesse
690 m
UniBo - Campus Corso D'Augusto
970 m
UniBo Rimini - Campus Via Angherà
1,0 Km
Farmacia Farmacia
Farmacia
240 m
Versari
830 m
Parafarmacia
870 m
Farmacia Comunale
1,1 Km
Farmacia Centrale
1,2 Km
Ospedali Ospedali
Ospedale dei villeggianti
2,3 Km
Supermercati Supermercati
Conad
250 m
Supermarket Cinese
870 m
Balkan Market
970 m
Supermarket
1,1 Km
Zhong Nan Hai
1,1 Km
Negozi Negozi
Conad
250 m
A Casa da Noi - Bed and Breakfast
730 m
Negozi
840 m
Gabriela Marioni
850 m
Motivi
1,2 Km
Bar Bar
Bar
130 m
Darsena
600 m
Stram Palato
690 m
LOB
780 m
Retroborg
790 m
Ristoranti Ristoranti
Il Portolotto
70 m
La Cappa
310 m
Ristorante Laura
360 m
Piadina del Porto
370 m
L'Ancora
400 m
Mostra tutto

Caratteristiche

Rif.:
61125177
Piano:
Terra di 4 con ascensore
Totale piani:
4
Camere da letto:
1
Arredamento:
Assente
Condizionamento:
Autonomo
Mostra tutto
Prezzo Prezzo
€ 285.000
Rata mutuo Rata mutuo
€ 1.332 / mese
Proponi il tuo prezzoProponi il tuo prezzo

Classe Energetica

Questo immobile è esente da classe energetica
Anno di costruzione:
2026
Riscaldamento:
Centralizzato
Tipo impianto:
A pavimento
Tipo alimentazione:
Altro

Ti interessa visionare l'immobile?

Fissa un appuntamento  Fissa un appuntamento

Richiedi informazioni

Clicca su Leggi per aprire l'informativa
* Questi campi sono obbligatori

Calcola il tuo mutuo

Semplice e senza impegno
Anticipo

( % )
Mutuo

( % )

pochi semplici passi

inserisci i tuoi dati
Questionario completato
Grazie per aver richiesto un appuntamento senza impegno con un nostro Consulente del Credito e Assicurativo.

Hai inserito correttamente tutti i dati necessari e a breve riceverai una e-mail con un link da convalidare per inviare i tuoi dati.
Affiliato
Studio Marina Rimini Srl
Via Destra Del Porto, 83 47900 Rimini (RN)

Il nostro staff


  • Luca Chezzi
    Affiliato

  • Fabio Dellarosa
    Responsabile

  • Serena D'Arco
    Coordinatrice

  • Francesco Giuseppe Mungo
    Collaboratore

  • Cristina Placido
    Responsabile

  • Jacopo Pazzaglini
    Collaboratore
Via Destra Del Porto, 83 47900 Rimini (RN)
Zona: Marina Centro-San Giuliano Mare-Centro Storico
Mostra su mappa
Orari: Lunedi/Venerdi': 9.00/13.00-15.00/19.00 Sabato:9.00/13.00- 15.00/19.00
Affiliato
Studio Marina Rimini Srl
Via Destra Del Porto, 83 47900 Rimini (RN)

2026 Tecnocasa Franchising S.p.A. - P. IVA 08365160152 - Via Monte Bianco 60/A 20089 Rozzano (MI). Ogni agenzia ha un proprio titolare ed è autonoma. Privacy policy | Policy utilizzo | Cookie policy